recently sold -- Page 8

Sold
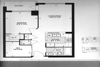
$556,500
555 Wilson Avenue Unit# E401, Toronto C06, Ontario M3H 0C5
  • 2Beds
  • 2Baths
882 Listings